Fenstersysteme aus Kunststoff
Für hohe Energieeffizienz | Moderner Look | Für die Ruhe zu Hause
Unsere Produktlinien stellen massgeschneiderte Lösungen für verschiedene Anwendungsbereiche zur Verfügung, darunter Neubau, Renovierung, Sanierung und Modernisierung die individuell angefertigt werden.
Lieferung bereits ab 10-Tagen
Bedienkomfort
Durch erhöhte Stabilität lassen sich unsere Fenster ohne Kraftaufwand öffnen und schließen.
Sicherheit
Einbruchschutz Plus+ Schützen Sie sich und Ihre Wertsachen mit integriertem Einbruchschutz.
Wärmedämmung
Energie sparen und gleichzeitig die Umwelt schonen durch perfekt gedämmte Fenster.
Entdecken Sie die faszinierenden Eigenschaften von Kunststoff. PVC, das bei Fenstermarkt für Kunststofffenster verwendet wird, bietet eine Vielzahl von Vorteilen: pflegeleicht, kostengünstig, widerstandsfähig, feuchtigkeitsbeständig und mit geringer Wärmeleitfähigkeit.
VistaOptima i-2
60mm Bautiefe
Das System auf das Sie sich verlassen können.
1,6 W/m²K Uf-Wert
1,0 W/m²K bester Uw-Wert
bis zu 43db Schallschutz
Technische Details
- 60mm Bautiefe
- Uf=1,6 W/m²K
- Uw=1,4 W/m²K mit Standard 2-fach Verglasung mit Ug=1,1 und Psi=0,040 W/mK
- Uw=1,0 W/m²K bestmögliche Variante mit 3-fach Verglasung mit Ug=0,6 und Psi=0,030 W/mK
- bis zu 43dB Schallschutz (Schallschutzklasse 4)
- bis zu 33mm Verglasung
- mit zahlreichen Dekorfolien erhältlich
- 3 Kammer-Profil
VistaOptima i-4
70mm Bautiefe
Das bewährte I-4 ist Millionenfach im Einsatz, punktet dieses System durch seine gute und bewährte Stabilität und ihren Werten.
1,3 W/m²K Uf-Wert
0,76 W/m²K bester Uw-Wert
bis zu RC2 Sicherheit
bis zu 45db Schallschutz
Technische Details
- 70mm Bautiefe
- Uf=1,3 W/m²K
- Uw=0,99 W/m²K mit Standard-Dreifach-Verglasung mit Ug=0,6 und Psi=0,040 W/mK
- Uw=0,76 W/m²K bestmögliche Variante mit Dreifach-Verglasung mit Ug=0,4 und Psi=0,030 W/mK
- bis zu RC2 Einbruchschutz
- bis zu 45dB Schallschutz (Schallschutzklasse 4)
- bis zu 41mm Verglasung
- mit zahlreichen Dekorfolien erhältlich
- mit aluskin Aluminiumvorsatzschalen erhältlich (sehr hohe Farbvielfalt)
- 5-Kammer-Profil
VistaOptima i-5
70mm Bautiefe
Das sichere Renovierungssystem mit dem Plus an Einbruchschutz.
1,2 W/m²K Uf-Wert
0,73 W/m²K bester Uw-Wert
bis zu RC3 Sicherheit – Einbruchschutz im Fensterrahmen
bis zu 47db Schallschutz
Technische Details
- 70mm Bautiefe
- Uf=1,2 W/m²K
- Uw=0,96 W/m²K mit Standard-Dreifach-Verglasung mit Ug=0,7 und Psi=0,040 W/mK
- Uw=0,73 W/m²K bestmögliche Variante mit Dreifach-Verglasung mit Ug=0,4 und Psi=0,030 W/mK
- bis zu RC3 Einbruchschutz
- bis zu 47dB Schallschutz (Schallschutzklasse 5)
- bis zu 41mm Verglasung
- mit zahlreichen Dekorfolien erhältlich
- mit aluskin Aluminiumvorsatzschalen erhältlich (sehr hohe Farbvielfalt)
- 5-Kammer-Profil
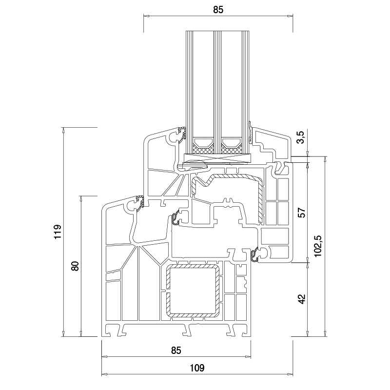
VistaOptima i-7
85mm Bautiefe
Verlässlich im Neubau-Bereich: Das bewährte System I-7 sorgt für beste Wohnqualität und gute Energieeffizienz.
1,1 W/m²K Uf-Wert
0,70 W/m²K bester Uw-Wert
bis zu RC2 Sicherheit
bis zu 46db Schallschutz
Technische Details
- 85mm Bautiefe
- Uf=1,1 W/m²K
- Uw=0,86 W/m²K mit Standard-Dreifach-Verglasung mit Ug=0,6 und Psi=0,040 W/mK
- Uw=0,70 W/m²K bestmögliche Variante mit Dreifach-Verglasung mit Ug=0,4 und Psi=0,030 W/mK
- bis zu RC2 Einbruchschutz
- bis zu 46dB Schallschutz (Schallschutzklasse 4)
- bis zu 51mm Verglasung
- mit zahlreichen Dekorfolien erhältlich
- mit aluskin Aluminiumvorsatzschalen erhältlich (sehr hohe Farbvielfalt)
- 6 Kammer-Profil
IDEAL® 2000
60mm Bautiefe
IDEAL 4000®
70mm Bautiefe
IDEAL 5000®
70mm Bautiefe
IDEAL 7000®
85mm Bautiefe
IDEAL 8000®
85mm Bautiefe
Sehr gute Dämmwerte und das Plus an Sicherheit prädestinieren dieses System für den Einsatz im Neubau und Renovation.
1,0 W/m²K Uf-Wert
0,67 W/m²K bester Uw-Wert
bis zu RC3 Sicherheit
bis zu 48db Schallschutz
Die Marke aluplast ist weltweit bekannt und unter den top Produkten nicht mehr wegzudenken. Aluplast ist bekannt für seine Innovationen, seine hochwertigen Materialien und seine Liebe zum Detail. Aluplast-Fenster zeichnen sich durch eine hervorragende Wärme- und Schalldämmung aus, was sich in Energieeinsparungen und Nutzungskomfort niederschlägt. Die Produkte der Marke sind ausserdem pflegeleicht und widerstandsfähig gegen Beschädigungen.
energeto®neo
Technische Details
energeto® neo flächenversetzt
- Uf = 1,00 W/m²K
- Uw = 0,89 W/m²K 1
- Uw = 0,73 W/m²K bestmögliche Variante 2,3
energeto® neo flächenbündig
- Uf = 0,87 W/m²K
- Uw = 0,85 W/m²K 1
- Uw = 0,69 W/m²K bestmögliche Variante 2,3
IDEAL neo flächenversetzt
- Uf = 1,2 W/m²K
- Uw = 0,96 W/m²K 1
- Uw = 0,79 W/m²K bestmögliche Variante 2,3
1) mit Standard-Dreifach-Verglasung Ug = 0,7 W/m²K und Psi = 0,040 W/mK 2) mit Dreifach-Verglasung mit Ug = 0,5 W/m²K und Psi = 0,030 W/mK
energeto®– Fenster
Überlegene Fenster-Technologien
Nur ein Fenster? Mitnichten! Lassen Sie sich begeistern von den herausragenden Eigenschaften eines Fensters, das seinesgleichen sucht. Die innovativen aluplast-Technologien garantieren Ihnen Wärmedämmung, Einbruchschutz und Bedienkomfort auf höchstem Niveau.
Bei konventionellen Fenstern liegt der thermische Schwachpunkt in der Stahlverstärkung, die die wertvolle Wärmeenergie nach draußen leitet. Die Antwort von aluplast: energeto®, das revolutionäre stahlfreie Fenstersystem. Ein spezieller, powerdur genannter Werkstoff ersetzt den Stahl und verbessert die Wärmedämmung massiv. Die Wärme bleibt genau da, wo sie gebraucht wird: im Inneren des Hauses. Gut für Sie, gut für die Umwelt.
energeto Serie: 4000 | 5000 | 8000
energeto® 8000
85 mm Bautiefe
Mit einer Bautiefe von 85 mm ist energeto® 8000 speziell für das Neubausegment konzipiert. Sein Uf-Wert von 0,94 W/m²K garantiert herausragende Energieeffizienz auf Passivhausniveau. Optisch besticht es durch seine Geradlinigkeit.
85mm
Bautiefe
0,94 W/m²K
Uf-Wert
0,65 W/m²K
bester Uw-Wert
bis zu RC2
Sicherheit
bis zu 46db
Schallschutz
- Es übertrifft die Anforderungen der aktuellen Energieeinsparverordnung bereits deutlich,
- überzeugt durch seine Sicherheit, die von offizieller Prüfstelle bestätigt wird,
- ist wiederverwertbar und kann zu 100% in den stofflichen Kreislauf zurückgeführt werden,
- besteht aus witterungsbeständigem Kunststoff und wird zu hochwertigen Fenstern verarbeitet, die vor Lärm, Witterung und Einbruch schützen,
- ist ein RAL-zertifiziertes Fenstersystem.
Farben
Sprossen
Wir bieten sowohl innenliegende Sprossen, aufgeklebte Sprossen, als auch die s. g. Duplex-Sprossen an.
Guillotine-System
Mehr Lichteinfall
+16% Höherer Lichteinfall dank schmaler Profile. Wesentlich schmaler als bei herkömmlichen Fenstern.
Aufrüstungsprodukte - Zubehör
Erläuterung der technischen Zeichnung
Die technische Darstellung gewährt einen Blick von innen, wodurch die Scharniere deutlich erkennbar sind. Dabei sind die Fenster in Richtung des Raumes geöffnet. Die blaue Markierung zeigt die Verglasung an. Die verschiedenen Möglichkeiten der Öffnung sind in den Abbildungen dargestellt. Die Animation veranschaulicht, wie das Fenster sowohl geöffnet als auch leicht gekippt werden kann.
Sicherheit gegen Einbruch – Wiederstandsklassen
EN-Normen in den Widerstandsklassen RC 2– 4 (Sicherheit), welche auch spezifische Anforderungen an den Brandschutz und den Schallschutz erfüllen.
| RC2 | RvE-Elemente in RC2 bieten erhöhten Einbruchschutz:Sie halten dem Einbruchsversuch eines Gelegenheitstäters mit einfachen Werkzeugen wie Schraubendreher, Zange und/oder Keile nachweislich mindestens 3 Minuten stand. |
| RC3 | RvE-Elemente in RC3 bieten hohen Einbruchschutz:Sie halten geübten Tätern mit Werkzeugen wie großen Brecheisen oder Kuhfuß nachweislich mindestens 5 Minuten stand. |
RC3+ | RvE-Elemente in RC3+ zusätzlich mit Sicherheitsgriff/ Schloss |


